Successful solution
Aluminium windows and doors with Klaes Alu plus
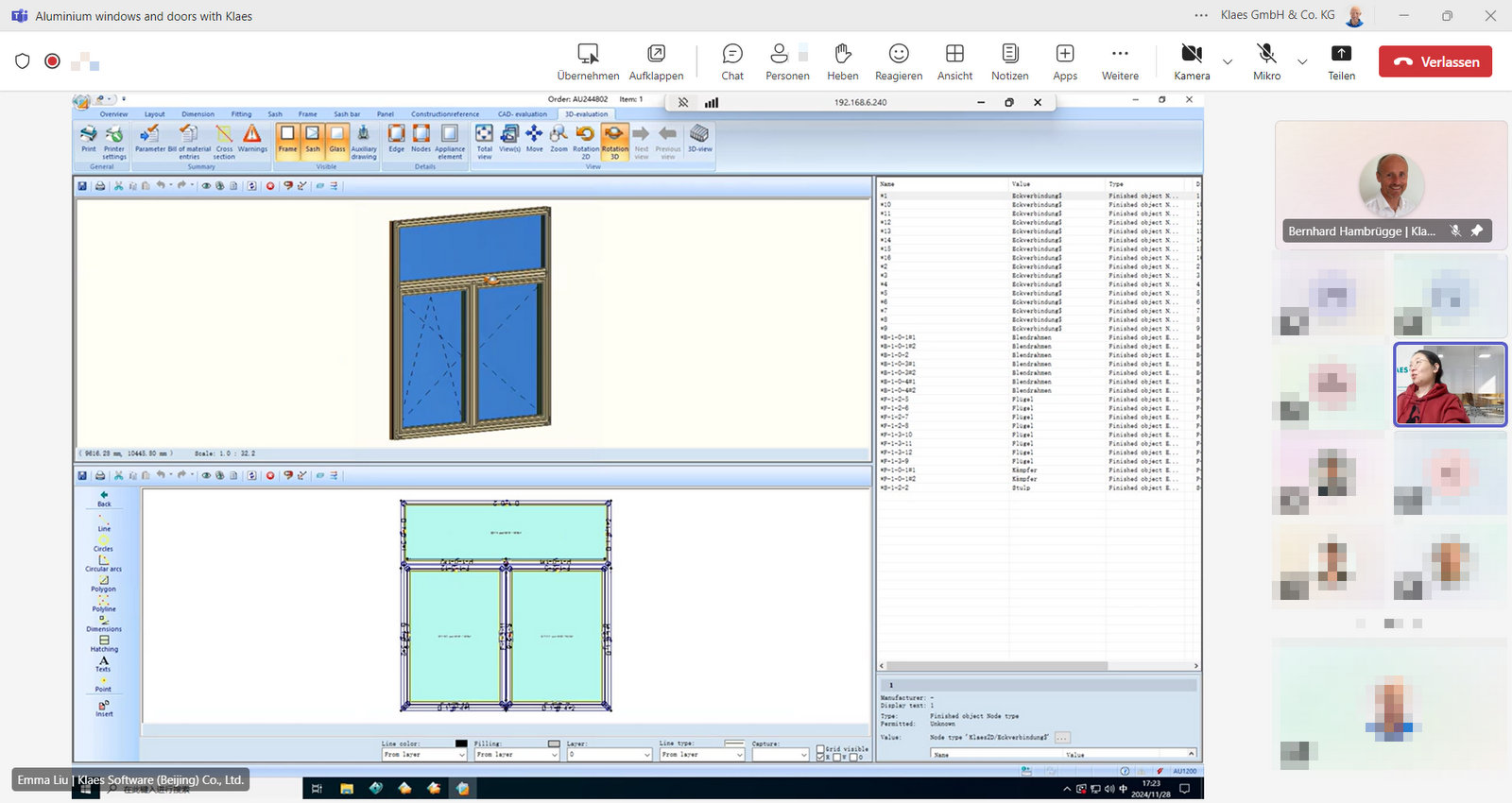
Our free web-presentation ‘Aluminium windows and doors with Klaes’ took place on November 28 and was met with great interest by the participants. Emma Liu (Klaes China) showed impressively how customers in China are already building high-quality windows and doors with our Alu plus solution – and all this seamlessly in the familiar Klaes environment. One customer has been using Alu plus for over three years and many others also control their machines with Klaes e-control.
Cover all material types with Alu plus
With Alu plus, our customers can produce aluminium windows and doors without having to use additional software. The solution combines the material types wood, PVC and aluminium in a single, integrated system. The result: greater efficiency, flexibility and a stronger position in the market.
A look into the future
The web-presentation has once again shown how important innovative and integrated solutions are for the success of our customers. We look forward to continuing to create new opportunities for the window and door industry and helping our customers realise their full potential.
Many thanks to all participants - and to Emma Liu for the exciting presentation!
Do you have any questions? We will be happy to answer them!
Of course also at BAU 2025 from 13 to 17 January
Back in Hall C3, booth 303 – from Monday to Friday!